Projects
Graphics
Resume
About
Projects
Graphics
Resume
About
Fie Alber

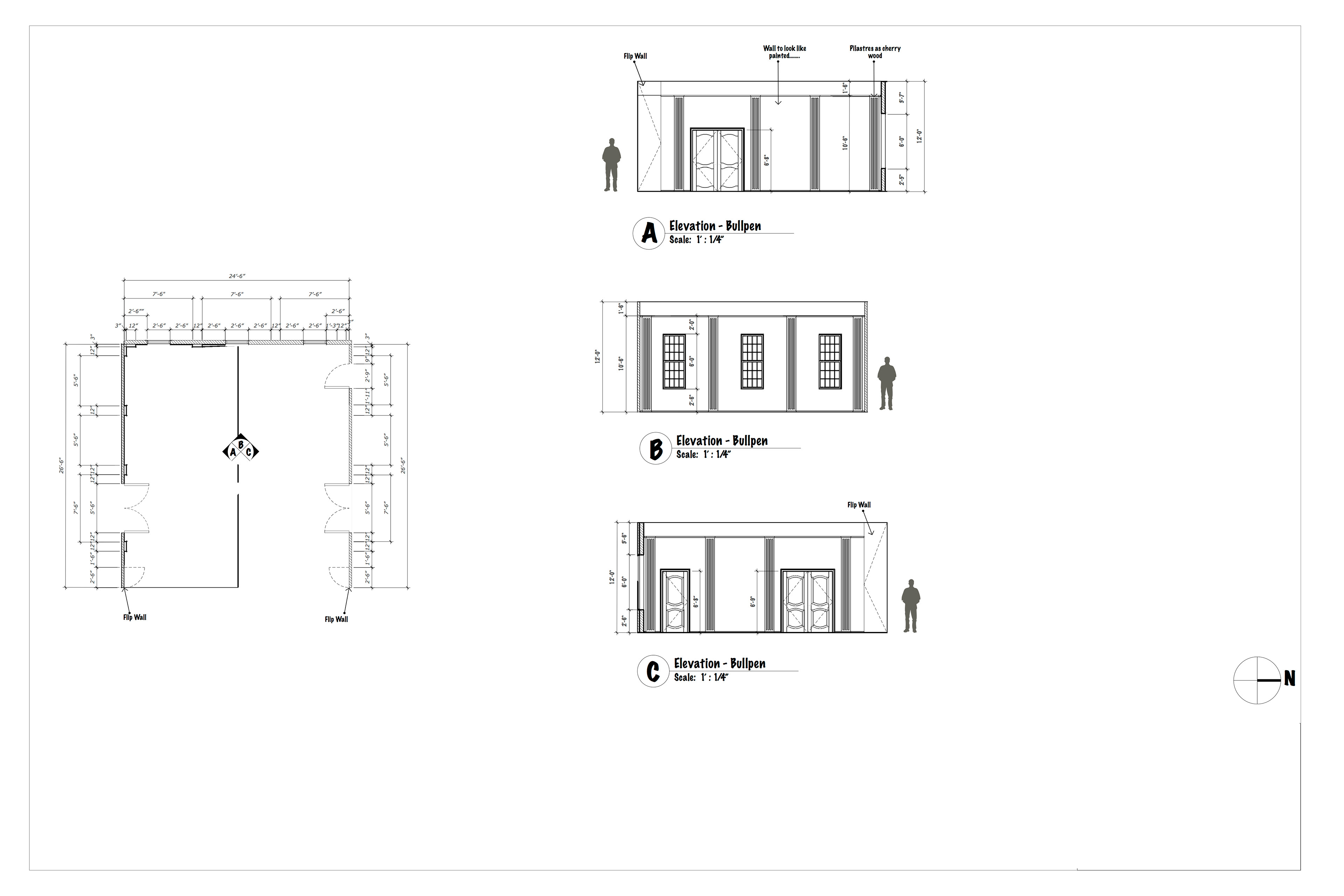
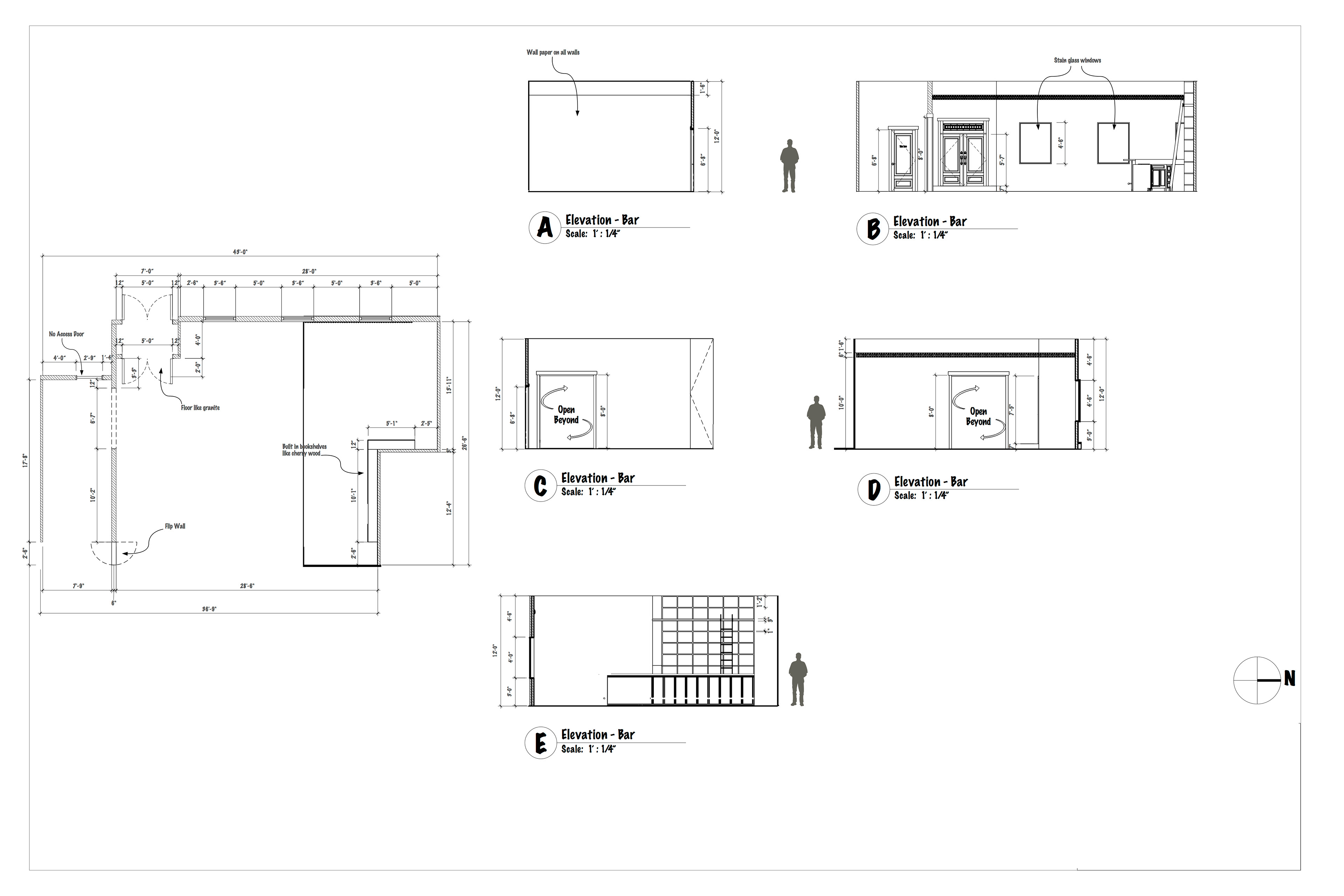
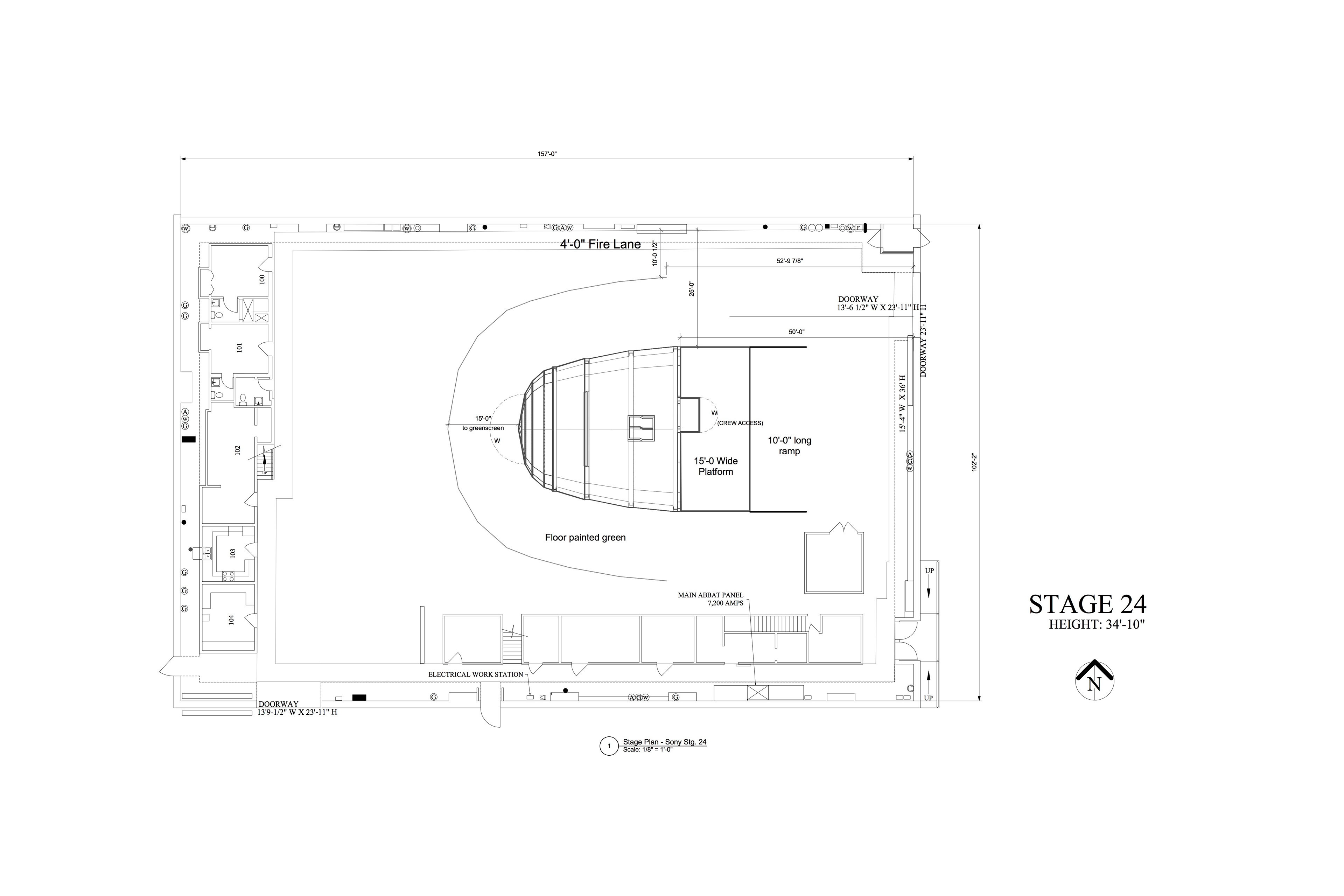
Drafting

↑Back to Top
Powered by Adobe Portfolio